您的位置: 首页 > 重点领域信息公开>公共资源配置、重大项目批准和实施>空间规划
年产2.2万吨高端腈类精细化学品项目一期工程建设工程许可信息批后公布
时间:2025-08-18 12:57来源:台安县自然资源局作者:点击: 次
工程概况
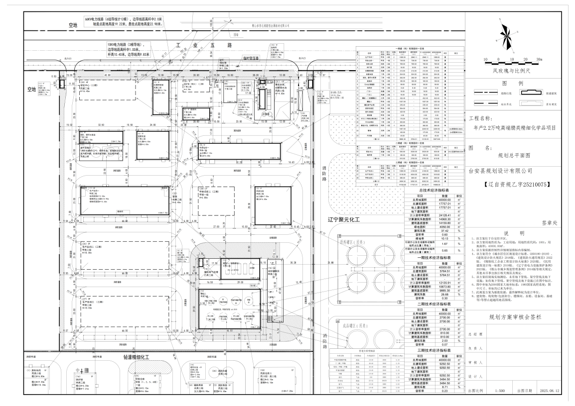
1、项目名称:年产2.2万吨高端腈类精细化学品项目一期工程。
2、项目内容:
规划用地面积:40000平方米,总建筑面积17757.01平方米,计容面积51431.45平方米,容积率0.6,建筑密度37.42%,绿地率10.13%,本期新建生产车间一1栋、甲类仓库一1栋、丙类仓库1栋、阀门室1栋、抗爆控制室1栋、变配电室1栋、消防、循环水泵房1栋、维修间1间、污水处理辅房1间、加药间1间、门卫一1间 、门卫二1间,建筑层数:-1层—2层。
3、规划编制单位:台安县规划设计有限公司。
4、建设单位:辽宁新凯瑞化学有限公司。
5、工程证号:建字第2103212025GG0029511号。
6、发证日期: 2025年08月18日。
