您的位置: 首页 > 重点领域信息公开>公共资源配置、重大项目批准和实施>空间规划
鞍山市建升碳材料科技有限公司钢结构库房-副跨项目建设工程许可信息批后公布
时间:2025-09-17 13:08来源:台安县自然资源局作者:点击: 次
工程概况
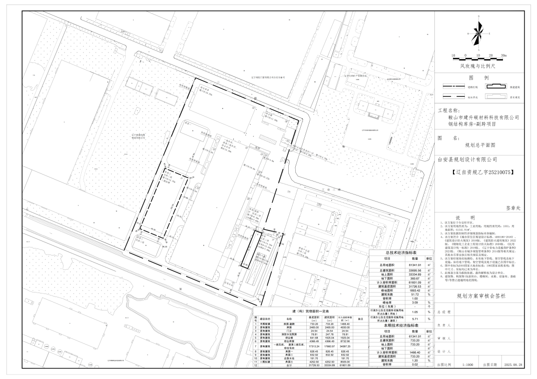
1、项目名称:鞍山市建升碳材料科技有限公司钢结构库房-副跨项目。
2、项目内容:
规划用地面积:5624.1平方米,总建筑面积33695.56平方米,计容面积61601.09平方米,容积率1.0,建筑密度51.72%,绿地率3.09%,本期新建钢结构库房-副跨1栋,建筑层数:1层。
3、规划编制单位:台安县规划设计有限公司。
4、建设单位:鞍山市建升碳材料科技有限公司。
5、工程证号:建字第2103212025GG0033580号。
6、发证日期:2025年09月17日。
