您的位置: 首页 > 重点领域信息公开>公共资源配置、重大项目批准和实施>空间规划
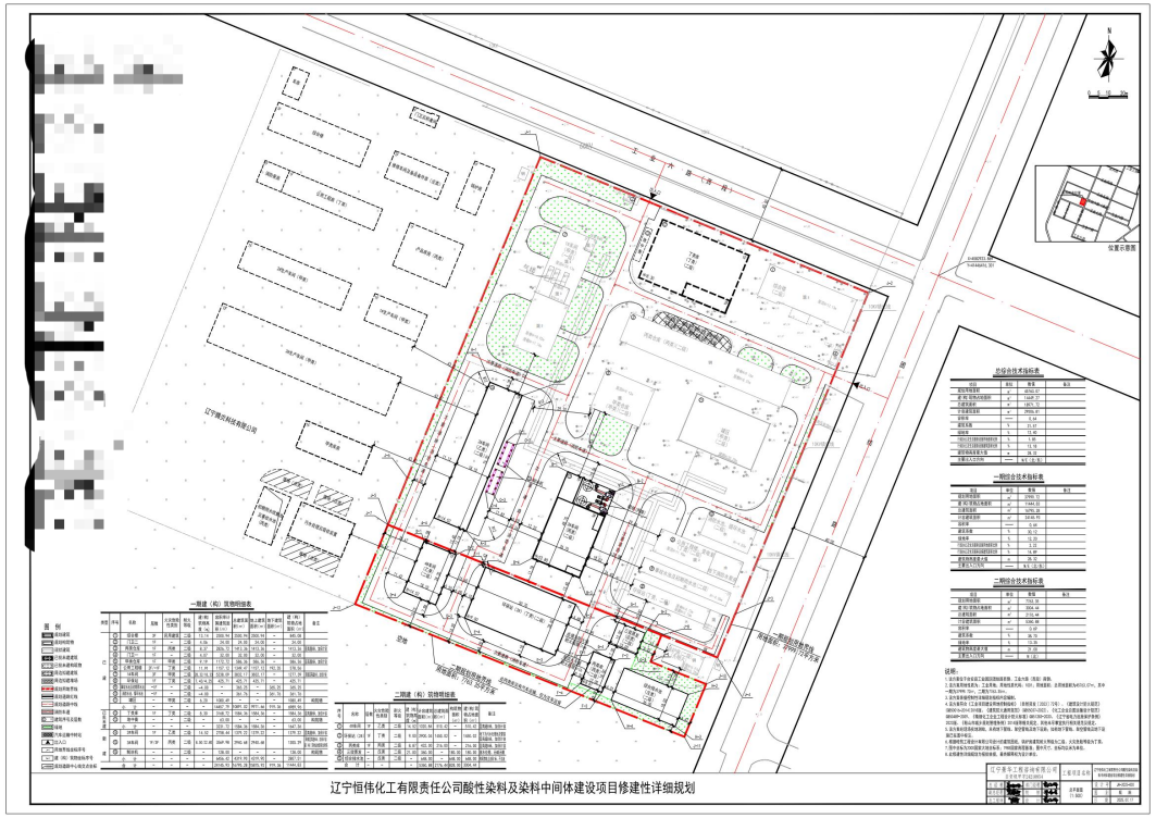
辽宁恒伟化工有限责任公司酸性染料及染料中间体建设项目建设工程许可信息批后公布
时间:2025-10-17 13:34来源:台安县自然资源局作者:点击: 次
工程概况
1、项目名称:辽宁恒伟化工有限责任公司酸性染料及染料中间体建设项目。
2、项目内容:
规划用地面积:37999.72平方米,总建筑面积16795.28平方米,计容面积24145.93平方米,容积率0.64,建筑密度30.12%,绿地率12.2%,本期新建2#车间1栋、3#车间1栋,建筑层数:1层——3层。
3、规划编制单位:辽宁景华工程咨询有限公司。
4、建设单位:辽宁恒伟化工有限责任公司。
5、工程证号:建字第2103212025GG0038514号。
6、发证日期:2025年10月17日。
